- British Columbia
- Surrey
5629 King George Blvd
CAD$969,900
CAD$969,900 要价
21 5629 KING GEORGE BOULEVARDSurrey, British Columbia, V0V0V0
退市 · 未知 ·
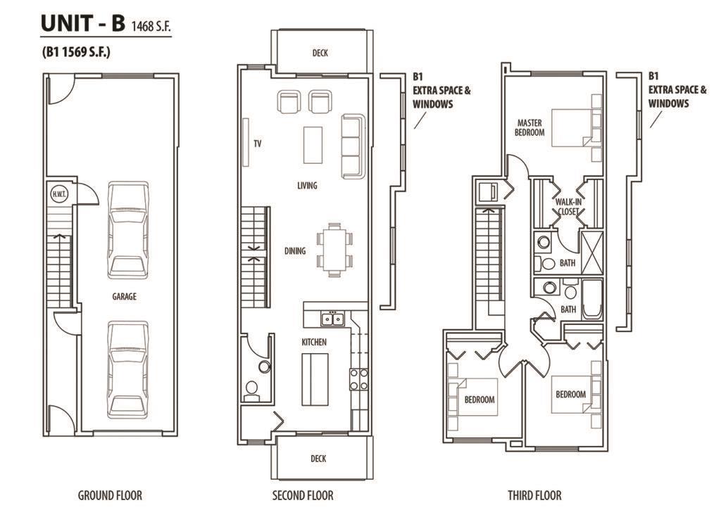
| 1468 sqft
Listing information last updated on Fri Nov 21 2025 14:30:11 GMT-0500 (Eastern Standard Time)

打开地图
Log in to view more information
登录概要
IDR2947793
状态未知
产权Condo/Strata
经纪公司Century 21 Coastal Realty Ltd.
类型Residential Townhouse,Attached
房龄建筑日期: 2025
面积(ft²)1468 尺²
房间卧房:0,浴室:0
管理费(月)307 / Monthly
详细
公寓楼
设施Clubhouse
家用电器Washer,Dryer,Refrigerator,Stove,Dishwasher,Garage door opener,Microwave,Alarm System - Roughed In,Central Vacuum - Roughed In
Architectural Style3 Level
地下室装修Finished
地下室类型Partial (Finished)
建筑日期2024
风格Attached
壁炉False
火警Unknown
供暖类型Forced air
使用面积1468 sqft
装修面积
类型Row / Townhouse
供水Municipal water
家用电器Washer,Refrigerator,Dishwasher,Stove,Dryer,Microwave,Alarm System - Roughed In,Central Vacuum - Roughed In,Garage door opener
Architectural Style3 Level
Building FeaturesClubhouse
Property AttachedYes
土地
面积false
下水Sanitary sewer,Storm sewer
Garage
Visitor Parking
水电气
Water SourceMunicipal water
周边
社区特点Rentals Allowed
地下室已装修,Full,未知
壁炉False
供暖Forced air
房号21
附注
A new community of 30 townhomes with 3 bedroom plus den/rec room below with beautiful wide open units with high end appliances. Located in quiet local community, walking distance to beautiful family parks and schools with transit right outside of the complex and all shopping, restaurants and grocery stores close by. Presentation Centre @ #1010 15150 56 Ave Book now and complete in 2025 with lower interest rates. All 3 bedrooms are on top 3rd level (id:61201)
The listing data above is provided under copyright by the Canada Real Estate Association.
The listing data is deemed reliable but is not guaranteed accurate by Canada Real Estate Association nor RealMaster.
MLS®, REALTOR® & associated logos are trademarks of The Canadian Real Estate Association.
位置
省:
British Columbia
城市:
Surrey
社区:
Panorama-ridge
学校信息
私校K-7 年级
North Ridge Elementary School
13460 62 Ave, 素里1.512 km
小学初中英语
8-12 年级
Panorama Ridge Secondary
13220 64 Ave, 素里2.099 km
高中英语
预约看房
反馈发送成功。
Submission Failed! Please check your input and try again or contact us






