- Saskatchewan
- Saskatoon
535 Doran Cres
CAD$599,900
CAD$599,900 要价
535 Doran CRESCENTSaskatoon, Saskatchewan, S0K2T0
退市 · 未知 ·
22| 1261 sqft
Listing information last updated on Sun Apr 06 2025 19:21:00 GMT-0400 (Eastern Daylight Time)

打开地图
Log in to view more information
登录概要
IDSK988197
状态未知
产权Freehold
经纪公司Realty Executives Saskatoon
类型Residential House
房龄建筑日期: 2024
占地38 * undefined undefined
Land Size38x115
面积(ft²)1261 尺²
房间卧房:2,浴室:2
详细
公寓楼
浴室数量2
卧室数量2
家用电器Garage door opener remote(s)
Architectural StyleBungalow
地下室装修Unfinished
地下室类型Full (Unfinished)
建筑日期2024
壁炉燃料Electric
壁炉True
壁炉类型Conventional
供暖方式Natural gas
供暖类型Forced air
使用面积1261 sqft
楼层1
装修面积
类型House
家用电器Garage door opener remote(s)
Architectural StyleBungalow
Fireplace FeaturesElectric,Conventional
Fireplaces Total1
FireplaceYes
Lot FeaturesSump Pump
土地
面积38x115
面积false
景观Lawn,Underground sprinkler
Size Irregular38x115
Attached Garage
Parking Space(s)
Other
特点Sump Pump
地下室未装修,Full
壁炉True
供暖Forced air
附注
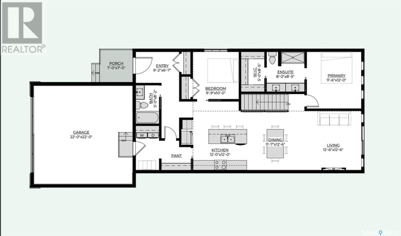
Welcome to Edgewater Homes newest model. “The Madison” This cozy 2-bedroom, 2-bathroom bungalow offers a comfortable living space with high vaulted ceilings and plenty of natural light from the west-facing backyard windows. The open living and dining areas are great for everyday living or having friends over. The kitchen stands out with its quartz countertops and eat at island. The bedrooms are comfortable with the Primary bedroom having its own 4PC bathroom. The backyard is a good size, facing west, and waiting for your personal touch. Living in Brighton means being part of a welcoming community, with parks and shops nearby. *THIS HOME IS UNDER CONSTRUCTION AND WILL BE COMPLETED IN EARLY 2025* All Pictures may not be exact representations of the home, to be used for reference purposes only. Errors and omissions excluded. Prices, plans, and specifications subject to change without notice. All Edgewater homes are covered under the Saskatchewan New Home Warranty program. PST & GST included with rebate to builder. (id:61201)
The listing data above is provided under copyright by the Canada Real Estate Association.
The listing data is deemed reliable but is not guaranteed accurate by Canada Real Estate Association nor RealMaster.
MLS®, REALTOR® & associated logos are trademarks of The Canadian Real Estate Association.
位置
省:
Saskatchewan
城市:
Saskatoon
社区:
Brighton
房间
房间
层
长度
宽度
面积
门廊
Main level
21.98
30.18
663.49
4pc Bathroom
Main level
NaN
卧室
Main level
32.81
32.48
1065.63
主卧
Main level
39.37
38.06
1498.34
4pc Bathroom
Main level
NaN
Living room
Main level
41.34
41.34
1708.88
Dining room
Main level
41.34
38.39
1586.82
厨房
Main level
39.37
39.37
1550.00
预约看房
反馈发送成功。
Submission Failed! Please check your input and try again or contact us

